PLANNING

First Central Station

Seattle, Washington

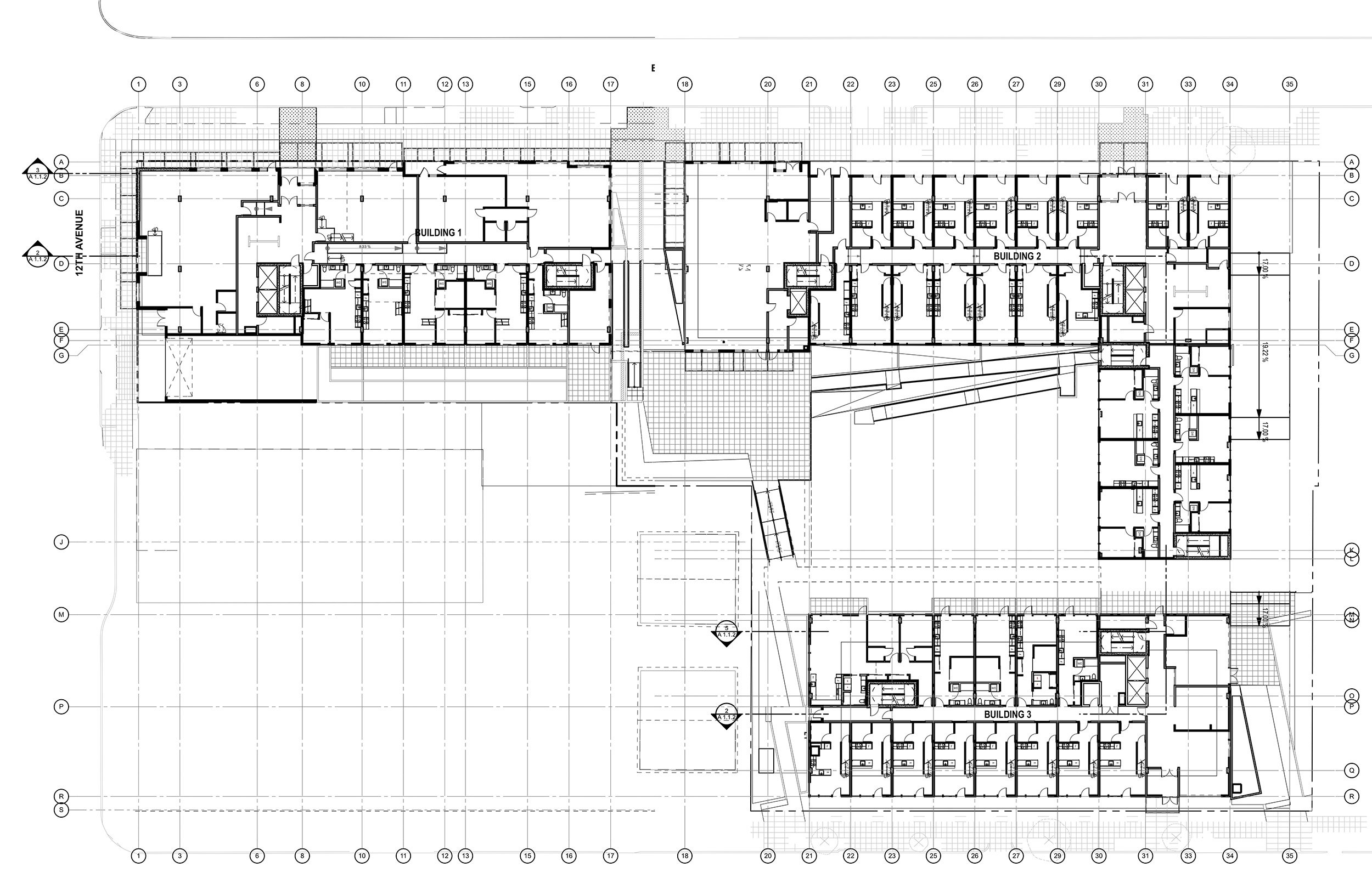
The First Central Station project site is located just south of Seattle University in the Central Area neighborhood. This mixed-use, new construction project aims to activate the community with park space, housing, restaurants, and retail—all while providing 385 new apartment homes.

During BUILD’s research and information gathering phase, over a dozen community groups were engaged to provide input to the design team throughout the year-long planning process. Using the data gathered from this outreach, and our context analysis, we performed multiple site studies to investigate a range of possible solutions for the 14 parcels that comprise this large urban project. The most effective and final schematic design maximized the L-shaped property perimeter, while creating a large public courtyard at the project center. Special attention was given to the storied context of the neighborhood, particularly the site’s relationship to its eastern neighbor, the historic and landmarked Washington Hall. The project was successfully guided through the master-use and building permitting processes, with a building permit being made available to the client.

The design represents a collaboration with b9 Architects and Weinstein A+U.

10x


increase in density

385


residential units

“When collaborating with BUILD llc on a series of projects, I witnessed their unique design capabilities, their passion, and their discipline. Because of their design/build background, they exhibit a particular focus on technical resolution and cost control not normally demonstrated by comparable architectural firms. Their work is very thoughtfully conceived, rigorously developed, skillfully entitled, and realized with very effective collaboration with general contractors. From initial sketches through contract documents, their documentation is thorough and precise, leading to consistently excellent outcomes.”

— Ed Weinstein, Principal, FAIA, Weinstein A+U

Want to know more?

Previous
Previous

First Central Station Building 3

Next
Next

Central Area Development